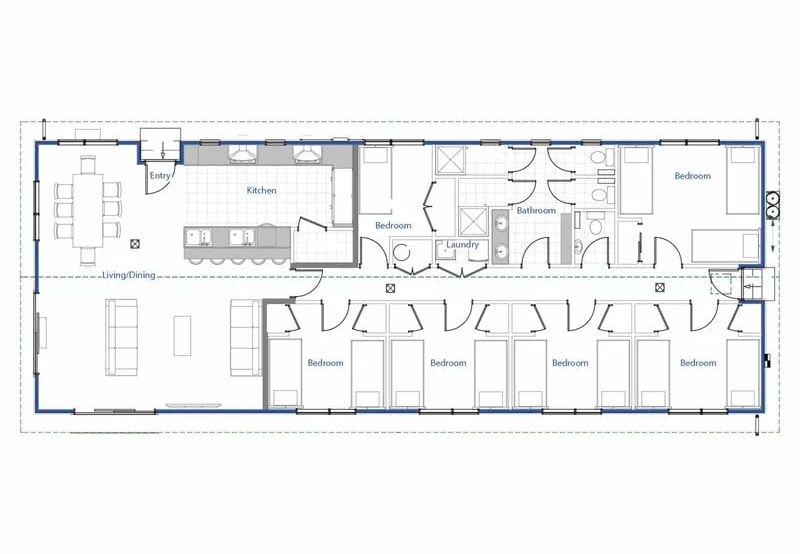
SEASONAL WORKERS HOUSE

Pricing from: $POA

A convenient accommodation solution designed to house seasonal workers, backpackers, and students. Suitable for up to twelve residents, it's complete with a large communal kitchen, spacious common area, and ample washing facilities.